Call Today
020 3841 8660

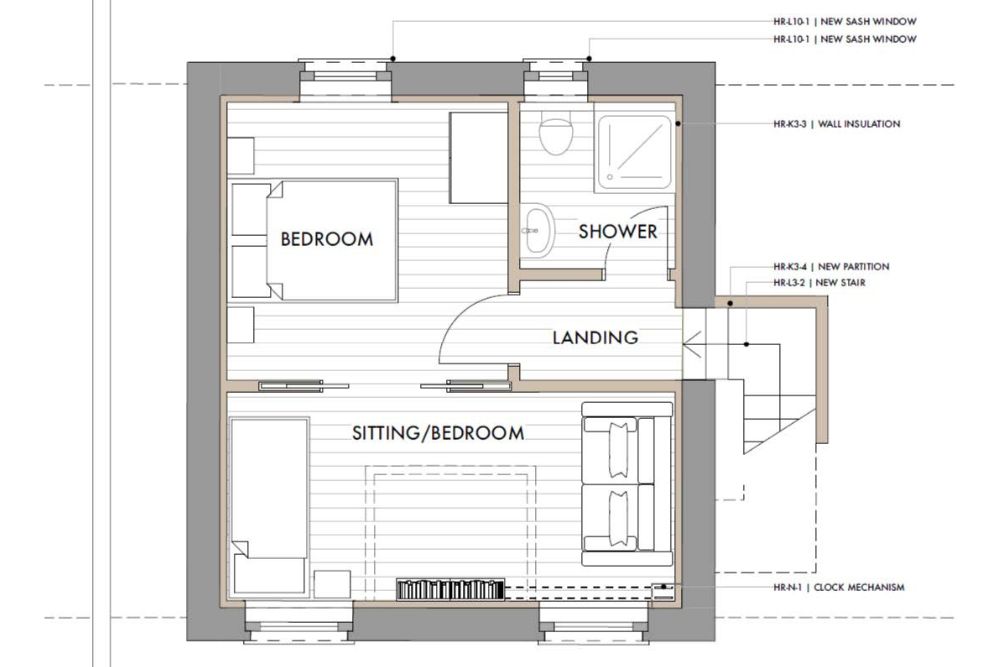
The Clock House in Rectory Park, Horsmonden – Kent

Project Outline

Our client commissioned us to produce a pre-application Heritage Statement relating to a proposal to convert the central part of a clock house, into a guest annexe to his existing property over two storeys.

The application site is subject to several heritage constraints, principal amongst which is its designation as a Grade II listed building. The site was first listed as Stable Block and Walled Gardens in 1989.

Furthermore, the site is within the setting of the Grade II Rectory Park and the Grade II Coachhouse/Cart Sheds. Therefore, potential impacts upon the setting of these assets must be considered by proposals.

It also forms part of Rectory Park which is included within The Kent Compendium of Historic Parks and Gardens for Tunbridge Wells Borough, a review which highlights Park and Gardens of Historic interest within the borough. However, inclusion within this list has no statutory relevance and provides no protection.

The application site is located within the historic parish of Horsmonden, the majority of which was included within the Hundred of Brenchley and Horsmonden. The name Horsmonden is supposedly derived from the Old English ‘hors bunda denne’ which translates to ‘the horse farmer valley’. The village was first recorded as ‘Horsbundenne’ during the 12th century.

The rectory, originally known as the ‘Parsonage House’, was built during the 15th century. Its patronage was included as part of the manor of Horsmonden alongside St Margaret’s Church. The house was converted and enlarged during the mid-16th century and was enlarged once again in the early 18th century.

More recently, between 2014-2015, the main house and the grounds underwent several phases of refurbishment including the removal of several 20th century additions.

Our client commissioned us to produce a pre-application Heritage Statement relating to a proposal to convert the central part of a clock house, into a guest annexe to his existing property over two storeys.

The application site is subject to several heritage constraints, principal amongst which is its designation as a Grade II listed building. The site was first listed as Stable Block and Walled Gardens in 1989.

Furthermore, the site is within the setting of the Grade II Rectory Park and the Grade II Coachhouse/Cart Sheds. Therefore, potential impacts upon the setting of these assets must be considered by proposals.

It also forms part of Rectory Park which is included within The Kent Compendium of Historic Parks and Gardens for Tunbridge Wells Borough, a review which highlights Park and Gardens of Historic interest within the borough. However, inclusion within this list has no statutory relevance and provides no protection.

The application site is located within the historic parish of Horsmonden, the majority of which was included within the Hundred of Brenchley and Horsmonden. The name Horsmonden is supposedly derived from the Old English ‘hors bunda denne’ which translates to ‘the horse farmer valley’. The village was first recorded as ‘Horsbundenne’ during the 12th century.

The rectory, originally known as the ‘Parsonage House’, was built during the 15th century. Its patronage was included as part of the manor of Horsmonden alongside St Margaret’s Church. The house was converted and enlarged during the mid-16th century and was enlarged once again in the early 18th century.

More recently, between 2014-2015, the main house and the grounds underwent several phases of refurbishment including the removal of several 20th century additions.

Reference:
J004851

OUTCOME

We are delighted that planning has been approved with conditions.