Call Today
020 3841 8660

Former Builder’s Merchants in Arundel, West Sussex

Project Outline

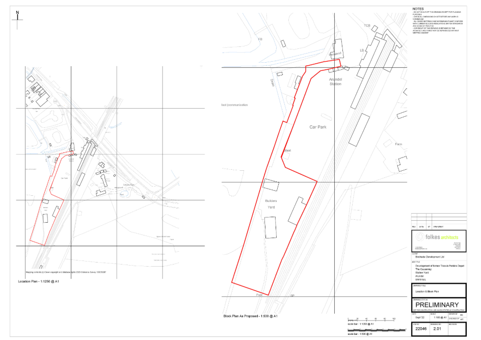
Birchside Developments commissioned WS Heritage to undertake a Heritage Impact Assessment addressing proposals for a Former Travis Perkins Builder’s Merchants Depot in Arundel, West Sussex.

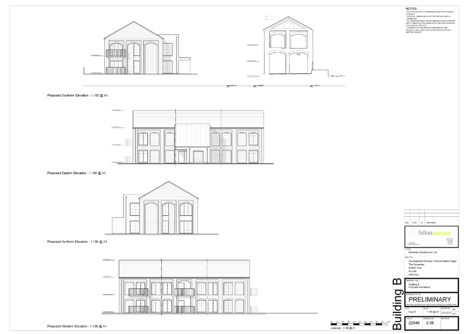
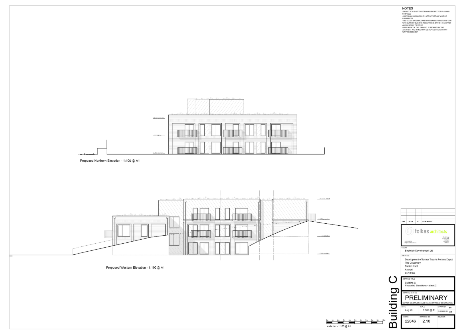
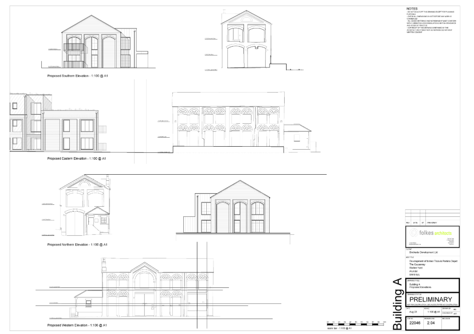
Proposals comprised the redevelopment to include the change of use and associated conversion of a Grade II listed former goods shed that was first designated in Sep 1984, to provide six residential units; the demolition of two former office buildings and storage sheds; the construction of two apartment blocks (one of six units and one of nine units); and, associated parking, landscaping, and bin storage.

The list description for the site may be summarised as follows:
Originally a goods shed in the railway yard. Mid C19. Two storeys. Eight bays. Brown brick with red brick dressings. Each bay is flanked by pilasters. Tiled roof. The east front has lunette windows on both floors. The west front has a non-central goods entrance with loft above, flanked by tall pilasters with a gable over. Two tiers of two lunette windows to the north of this and four to the south.

The application site is also located within the near setting of Grade II* listed Priory Farmhouse which was first designated on 20-Sep-1984. The list description for this site may also be summarised as follows:
Queen Adelisa, the widow of Henry I, who married as her second husband William de Albini, Earl of Arundel, founded a small house here for Augustinian Canons at some time before 1151. It was dedicated to St Bartholomew and was known as the Priory de Calceto or of the Causeway. It was suppressed by Cardinal Wolsey in 1524. Of the buildings, a portion of a square tower remains, which is now a farmhouse of which the name is spelled Calcetto with two “ts”.

Given intervening topography, foliage and/or mature tree cover (in conjunction with station paraphernalia and/or associated built form such as platform shelters etc.), no intervisibility between this heritage asset and the application site is understood to exist, whilst any associated change and/or increase in activity arising from the implementation of proposals is deemed marginal, over and above that of the station itself.

Plans and drawing courtesy of Folkes Architects

Birchside Developments commissioned WS Heritage to undertake a Heritage Impact Assessment addressing proposals for a Former Travis Perkins Builder’s Merchants Depot in Arundel, West Sussex.

Proposals comprised the redevelopment to include the change of use and associated conversion of a Grade II listed former goods shed that was first designated in Sep 1984, to provide six residential units; the demolition of two former office buildings and storage sheds; the construction of two apartment blocks (one of six units and one of nine units); and, associated parking, landscaping, and bin storage.

The list description for the site may be summarised as follows:
Originally a goods shed in the railway yard. Mid C19. Two storeys. Eight bays. Brown brick with red brick dressings. Each bay is flanked by pilasters. Tiled roof. The east front has lunette windows on both floors. The west front has a non-central goods entrance with loft above, flanked by tall pilasters with a gable over. Two tiers of two lunette windows to the north of this and four to the south.

The application site is also located within the near setting of Grade II* listed Priory Farmhouse which was first designated on 20-Sep-1984. The list description for this site may also be summarised as follows:
Queen Adelisa, the widow of Henry I, who married as her second husband William de Albini, Earl of Arundel, founded a small house here for Augustinian Canons at some time before 1151. It was dedicated to St Bartholomew and was known as the Priory de Calceto or of the Causeway. It was suppressed by Cardinal Wolsey in 1524. Of the buildings, a portion of a square tower remains, which is now a farmhouse of which the name is spelled Calcetto with two “ts”.

Given intervening topography, foliage and/or mature tree cover (in conjunction with station paraphernalia and/or associated built form such as platform shelters etc.), no intervisibility between this heritage asset and the application site is understood to exist, whilst any associated change and/or increase in activity arising from the implementation of proposals is deemed marginal, over and above that of the station itself.

Plans and drawing courtesy of Folkes Architects

Reference:
J004522

OUTCOME

The appeals were allowed granting planning permission and listed building consent.